À Vendre

511 000 $

2405 Rue Versailles , 403, Mascouche, QC J7K0L3

Isolé 3 Chambres à coucher 1 Salles de bain

Remarques

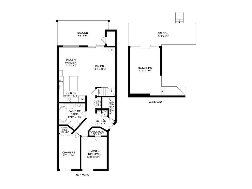
GARAGE + STATIONNEMENT EXTÉRIEUR Superbe condo à Mascouche offrant un style de vie recherché! Plafond cathédral aire ouverte réunissant salon, salle à manger et cuisine, agrémenté d'un foyer au gaz naturel pour une ambiance chaleureuse. La propriété propose une mezzanine actuellement aménagée en chambre à coucher, idéale pour optimiser l'espace. Deux balcons, dont un avec sortie de gaz naturel pour BBQ, parfait pour vos moments de détente. Grand îlot central, système de chauffage et climatisation centrale pour un confort absolu.

***GARAGE + STATIONNEMENT EXTÉRIEUR***
Superbe condo à Mascouche offrant un style de vie
recherché! Profitez d'un espace lumineux à aire ouverte
réunissant salon, salle à manger et cuisine, agrémenté d'un
foyer au gaz naturel pour une ambiance chaleureuse. La
propriété propose une mezzanine actuellement aménagée en
chambre à coucher, idéale pour optimiser l'espace. Deux
balcons, dont un avec sortie de gaz naturel pour BBQ,
parfait pour vos moments de détente. Grand îlot central,
système de chauffage et climatisation centrale pour un
confort absolu.
Un espace de rangement s'ajoutent à cette unité, en plus
d'un garage et d'un stationnement extérieur.

Localisation stratégique à proximité du parc de la
Seigneurie, pistes cyclables, écoles, commerces, train de
banlieue et accès rapide aux autoroutes 25 et 640.

Une opportunité à ne pas manquer!

Inclusions : 

Stores, luminaires, aspirateur central et acc , tablettes cc, hotte de cuisine .

Exclusions : 

Penderie PAX mezzanine / lave -vaisselle/ cuisinière / frigo

Résumé de la propriété

  • Style de bâtiment : Isolé
  • Frais de copropriété : $425,00 Mensuel
  • Évaluation du terrain : 68 600,00 $
  • Évaluation de l'immeuble : 369 500,00 $
  • Année d'évaluation : 2025
  • Taxes municipales : 3 090,00 $
  • Taxe scolaire : 292,00 $
  • Taxes annuelles totales : 3 382,00 $ (2025)
  • Nbre d'espaces de stationnement : 1
  • Superficie habitable (approx): 1498.0 Pieds carrés
  • Bâti en : 2010
  • Chambres : 3
  • Salle(s) de bains (complète(s)) : 1

Caractéristiques du bâtiment :

  • Allée:
    Asphalte
  • Mode de chauffage:
    Air soufflé (pulsé)
  • Approvisionnement en eau:
    Municipalité
  • Énergie pour le chauffage:
    Gaz naturel
  • Équipement/Services:
    [] , Balcon privé , Interphone , Porte de garage électrique , Thermopompe centrale
  • Foyer-Poêle:
    Foyer au gaz
  • Garage:
    Chauffé , Intégré
  • Appareils en location:
    Chauffe-eau
  • Proximité:
    Autre , Autoroute , Garderie/CPE , Golf , Parc , Piste cyclable , École primaire , École secondaire  - epicerie, magasins, restos
  • Services disponibles:
    [] , Détecteur d'incendie
  • Stationnement:
    Garage
  • Système d'égouts:
    Municipalité
  • Zonage:
    Résidentiel

Pièces

  • Hall d'entrée:
    Niveau : 3e niveau 2.23 m x 1.58 m
    Plancher : Céramique
  • Salon - Irrégulier:
    Niveau : 3e niveau 4.79 m x 3.78 m
    Plancher : Bois
  • Cuisine - Irrégulier:
    Niveau : 3e niveau 3.72 m x 3.08 m
    Plancher : Céramique
  • Salle à dîner:
    Niveau : 3e niveau 3.60 m x 2.68 m
    Plancher : Bois
  • Chambre:
    Niveau : 3e niveau 3.90 m x 3.08 m
    Plancher : Bois
  • Salle de bains:
    Niveau : 3e niveau 3.08 m x 2.44 m
    Plancher : Céramique
    bain antique
  • Chambre:
    Niveau : 3e niveau 4.08 m x 2.68 m
    Plancher : Bois
  • Chambre principale:
    Niveau : mezzanine 5.82 m x 3.69 m
    Plancher : Bois
    pourrait etre salle familiale
  • Autre - Irrégulier:
    Niveau : 3e niveau 4.88 m x 2.99 m
  • Autre:
    6.10 m x 3.05 m

Unités à revenue

  • Unité  PRINCIPAL
    Revenu mensuel potentiel : 0,00 $

Inscription du bureau: 

France Mantas - Courtier immobilier

Style de vie
Information du quartier

Obtenir plus de renseignements

Réserver votre visite